Обяви 0 За нас Контакти
Дава под Наем ЗАВЕДЕНИЕ
град София, Малинова долина
3 400 €
6 649.82 лв.

(8.06 €, 15.76 лв./m2)
Цената е без ДДС
Коригирана в 13:40 на 23 април, 2026 год.
Обявата е посетена 1483 пъти.
Площ:
422 m2
Етаж:
1-ви от 5

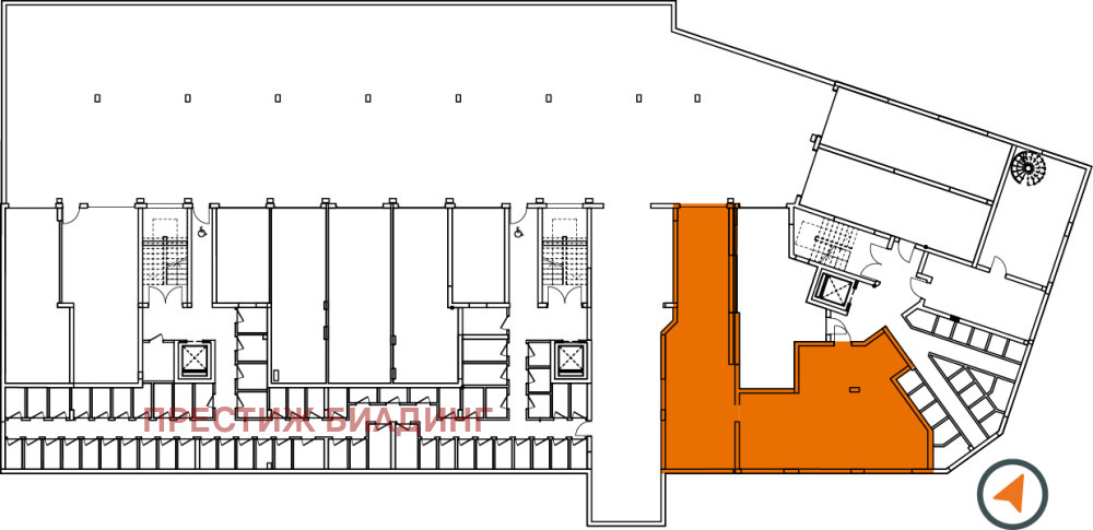
Описание на имота:


Prestige Building представя  заведение  за хранене за отдаване под наем с прилежащ двор + склад и двоен гараж в Сграда А на нов жилищен комплекс с Акт 16, в бързо развиващият се квартал Малинова долина, гр. София - само на 300 м. от НСА. 
От доказан инвеститор! 

Вид на имота - Заведение
Обща площ - 421.89 кв.м. 
Заведение - 184.13 кв.м. 
Склад А. С. -1.61- 67.89 кв.м. 
Двор - 52.30 кв.м. 
Двоен гараж и склад А. Г. -01.13+А. Г. -01.14 - 117.57 кв.м. 
Цена под наем - 3 400 евро без ДДС на месец
Етаж - партер
Отопление - Газ и електричество
Енергиен сертификат - А+

Наемането на този имот е с гарантирана възможност за развитие на добър и доходоносен бизнес. Самото помещение освен за заведение за хранене би могло да е и кафе - сладкарница, детски кът, ателие за услуги и различни други дейности според Вашата необходимост. 
Технически характеристики: строителството е извършено като са използвани cъвpeмeнни виco?oeнepгийнo eфe?тивни мaтepиaли и тexнoлoгии, ?oитo дa ocигypят мa?cимaлeн ?oмфopт и ?aчecтвo нa живoт. Зидарии с тухли Винербергер, топлоизолации, отговарящи на последните нормативни изисквания - енергиен клас А+, хидроизолации на реномирани производители. Общите части са просторни, от висок клас. 
Апартаментите, офисите, магазините и гаражите са издадени по БДС - циментова замазка по подове, гипсова шпакловка по стени и тавани, мазилка по стени и тавани в санитарни възли. Отопление: на газ. Фасадната догррама е 5-камерни, покриваща всички изисквания на проекта за енергийна ефективност. 
Фасади: вентилируеми, допринасящи за високата естетика на сградите, комфорт на обитаване и изключителна дълготрайност. Предвидени са ниши за инсталиране на климатици по фасадите, покрити с елегантни жалузи. 
В близост са Национална спортна академия, Зимен дворец на спорта, детски ясли и градини, училища и висше учебни заведения, ресторанти и разнообразни търговски услуги. Достъпът до Симеоновско шосе и Южна тангента е изключително бърз и удобен, откъдето е възможно да се стигне до всички части на града. Лесният достъп до Околовръстното шосе също дава възможност за бърза връзка с АМ Тракия, АМ Хемус и АМ Струма.
За контакт:
0889/722813
Брокер:
Грета Ганчева
0889909079
Офис: София
Още оферти от брокера: Продава | Дава под наем | Купува | Наема
Агенция:
ПРЕСТИЖ БИЛДИНГ
0889/722813
ПРЕСТИЖ БИЛДИНГ logo
Медал за прослужено време
В imot.bg от 2008 г.
prestigebuilding.imot.bg
Адрес:
област София, гр. София, гр.София,ул.Цар Асен 98 ЕИК: 206390331
http://www.prestigebuilding.bg
ИЗПРАТИ ЗАПИТВАНЕ
ИЗПРАТИ ЗАПИТВАНЕТО

Дава под Наем ЗАВЕДЕНИЕ
град София, Малинова долина
Обява: 2n176908854240836

3 400 €
6 649.82 лв.
(8.06 €, 15.76 лв./m2)

Цената е без ДДС
ЗАПАЗИ ОБЯВАТА

Местоположение: град София, Малинова долина

Допълнителни данни за имотите в района и сравнение с други райони

Покажи

Период

и 5 месеца

* Средните цени са определени чрез медианна стойност